Apartment for rent: no longer available Nijensteinheerd in Groningen

  • 130 m2
  • 5 rooms
  • 18 Immediately
  • Indefinite period
On this page you will find all information of this Apartment in Groningen. You can contact the advertiser if you have any questions.

Te huur aangeboden voor woningdelers
Super mooie eengezinswoning van 130 m2go met vier slaapkamers, dichtbij Groningen centrum. De woning heeft drie woonverdiepingen, een bergvliering, een schuifpui naar de zonnige achtertuin van 30 m2, vier slaapkamers. Verder aanwezig houten kozijnen, dubbelglas ++, op afstand bedienbare cv, zonwering/ automatische verduistering door hele huis en een ruime entree door grote voortuin.

De indeling
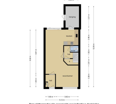
Bij binnenkomst na de tuin stapt u in de hal. Deze biedt toegang tot de meterkast en woonkamer. In deze hal, vroeger het tochtportaal van de woning, heeft u genoeg ruimte voor de jassengarderobe. De antracieten tegels zijn in de hal, woonkamer en keuken gelegd. Hierdoor vormen de verschillende ruimtes 1 geheel. De woonkamer van 30 m2 heeft een spelende vorm waardoor er een voor en achter ontstaat. Deze is voorzien van een mooie houtentafel (met stoelen),lampen een slaapbank, een poef, een stoel en en een dressoir. Gordijnen zijn ook aanwezig. Beide kanten hebben genoeg lichtinval en de zonnige achtertuin is te betreden via een mooie schuifpui. De keuken is voorzien van een vaatwasser, koelkast, oven, magnetron, gasfornuis, afzuigkap en spoelbak. De tegels (zogenaamde metro look) tegen de achterwand maken het mooi af.
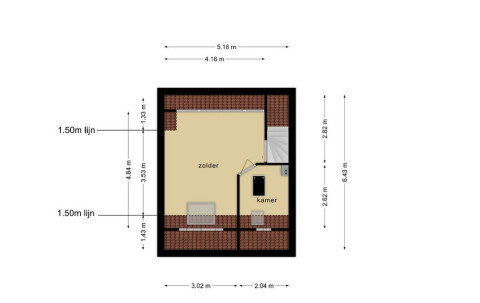
Aansluitend aan de keuken is er nog een berging die vanuit de tuin en vanuit de keuken te bereiken is. De berging/ bijkeuken heeft een lengte van 331 cm bij 224 cm (7,41 m2). De berging is voorzien van elektra. 1ste verdieping: De hal op de begane grond geeft toegang tot de bergkast en een toilet. Via de trap komt u op de overloop van de eerste verdieping. De eerste verdieping heeft drie ruime slaapkamers en een badkamer welke is voorzien van een aparte instapdouche, ligbad, een designradiator en een wastafel. 2de verdieping: Vanuit de tweede trap komt u bij de slaapkamer op zolder binnen. Deze slaapkamer is voorzien van dakkapellen en is net als de andere slaapkamers ruim van opzet en biedt ook toegang tot de royale kamer waarin de cv ruimte hangt. Hierboven is ook nog een bergvliering te vinden.

De buurt
De wijk Beijum is heerlijk wonen en dichtbij alles. De woning ligt op 13 min afstand van het centrum van Groningen en is op loopafstand van winkelcentra (Beijumen / Claremaheerd)voor dagelijkse boodschappen en openbaar vervoer. De universiteit ligt op minder dan 15 minuten fietsen. De wijk telt bijna 13.000 inwoners en is verdeeld over 42 zogenaamde heerden. Deze straatnamen zijn ontleend aan de Ommelandse boerderijen, in het Gronings “heerden” genoemd. Voor het verreweg grootste deel is Beijum ontworpen voor gezinnen met opgroeiende kinderen en heeft het een grote verscheidenheid aan woningtypen waaraan diverse architecten hun deel hebben bijgedragen. Tevens is Beijum de groenste wijk van Groningen met een prachtig wijkpark, de Groene Long, die van oost naar west midden door de wijk loopt.
De wijk kent onder meer 2 winkelcentra, cafes en restaurants diverse basisscholen, een Gezondheidscentrum, Sporthal, Bibliotheek etc

De investering
We vragen voor de hele woning van 130 m2 een bedrag van 1190 euro of 595 euro voor 65 m2 als u de woning wilt delen. Dat lijkt veel geld maar als je het vergelijkt met andere woningen is het een prijs welke marktconform is met 130 m2. Er wordt standaard een borg van 1,5 maand gevraagd. Uiteraard komt alles in een contract te staan.
We horen graag indien u interesse heeft. Dit weekend weer bezichtigingen. Ben je erbij? Tot dan..
Groetjes Jasmijn Alyssa

Read more with an package!

General information

City Groningen
District/Neighbourhood: Beijum
Register municipality: Yes
Status: Furnished
Housemates: None
Viewing In Consultation

Facilities

Private bathroom
Private kitchen
Private toilet
Private front door
Internet
Wifi
Private living room
No balcony
Smoking inside
Fire extinguisher
Private parking space
Private bicycle storage
Free parking
Pets allowed
Intercom
Bath
Private terrace
Private yard
Dishwasher
Washing machine
Show on map